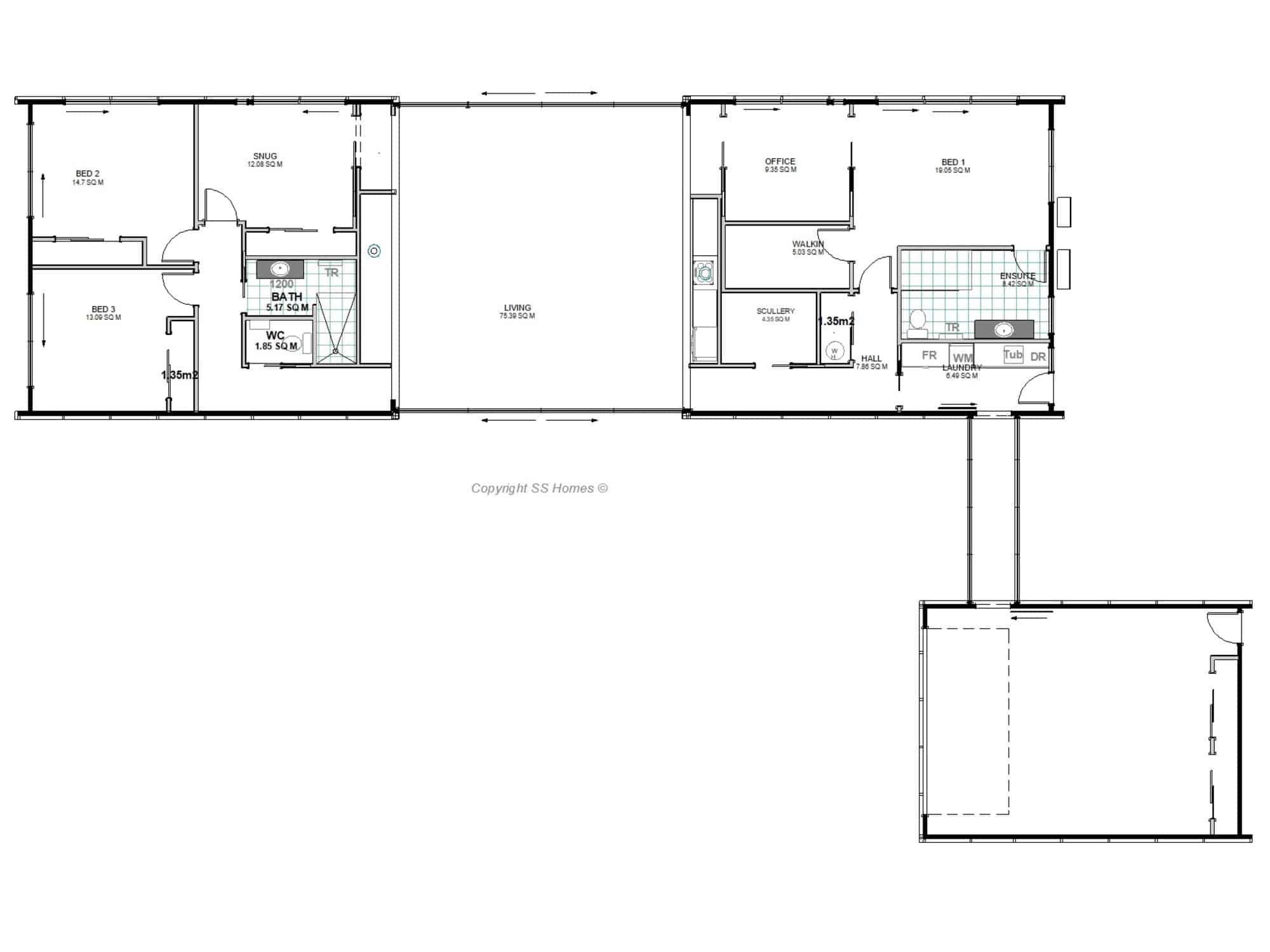
Set on a rural site, the Mutiny Rd rural home Hawke’s Bay reflects a contemporary approach to country living. Here, architectural clarity meets practical family design. Spanning 261m², this four-bedroom, two-bathroom home has been carefully planned to suit both daily life and relaxed entertaining.
The layout centres around two distinct living areas, allowing flexibility for family living. Throughout the Mutiny Rd rural home in Hawke’s Bay, there is a strong sense of connection. Skillion ceilings add height and drama, enhancing natural light and giving the interiors an open, expansive feel. This complements the surrounding landscape.
A standout feature of the design is the glass linkway connecting the main home to the garage. This key element provides visual separation while maintaining shelter and flow—emphasising the rural identity unique to homes like Mutiny Rd in Hawke’s Bay. Large windows and well-considered openings frame views across the site and strengthen the indoor-outdoor relationship.
Material selection and detailing focus on longevity, comfort, and ease of living, ensuring the home performs as beautifully as it looks. In every respect, the Mutiny Rd rural home set here in Hawke’s Bay has been designed with proportion, function, and lifestyle in mind. As a result, the home feels both refined and relaxed.
Designed and built by SS Homes Hawke’s Bay, this Mutiny Rd rural home stands as a showcase of our commitment to tailored design solutions and high-quality craftsmanship. This is especially true for rural residential builds.
Explore the floor plan here 👉 https://sshomes.co.nz/plan/mutiny-rd-rural-home-hawkes-bay/. For more details, discover what makes Mutiny Rd rural home in Hawke’s Bay unique among rural properties.
Living here is about more than just design — it’s about embracing the region’s beauty. Discover what makes Hawke’s Bay so special at Hawkes Bay Tourism






