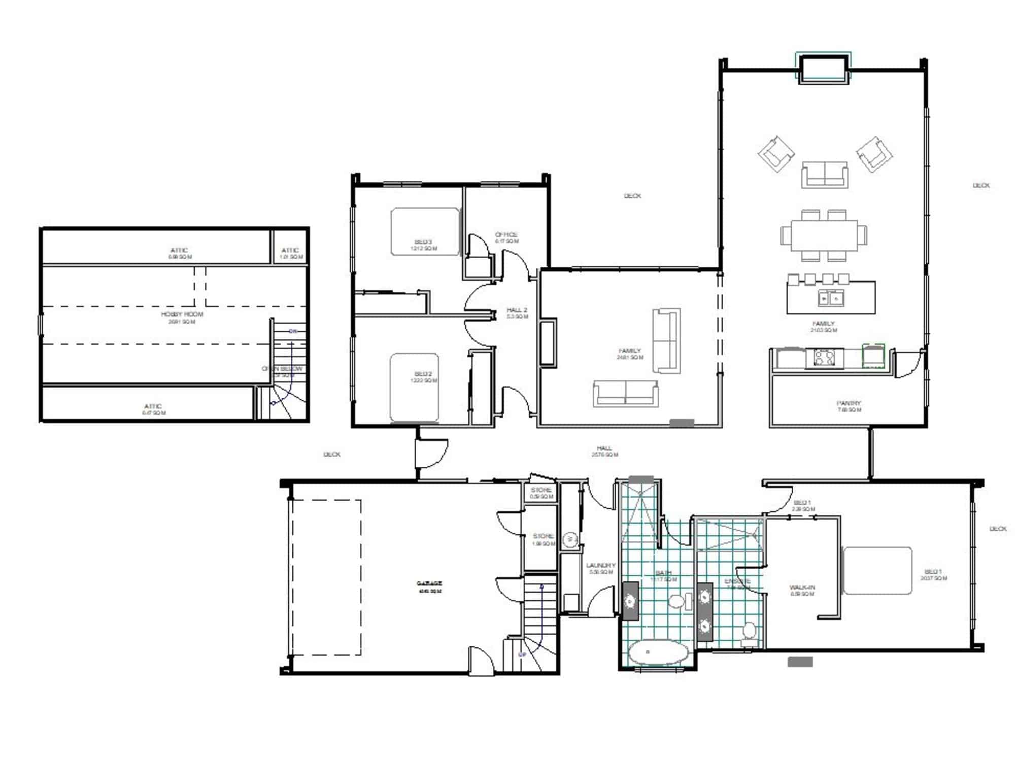
Westshore Home is a 281m² coastal design created for relaxed seaside living. This four-bedroom home features two bathrooms and two generous living areas. Scissor truss ceilings add volume and light throughout the interior. The home is designed to maximise sea views. In addition, the layout flows effortlessly to outdoor entertaining and a private pool. This makes it ideal for coastal family life. Carefully considered glazing, open-plan spaces, and strong indoor-outdoor connections ensure this home feels expansive yet welcoming.
👉 View the gallery: https://sshomes.co.nz/portfolio/westshore-coastal-home
Includes three exterior render options.









