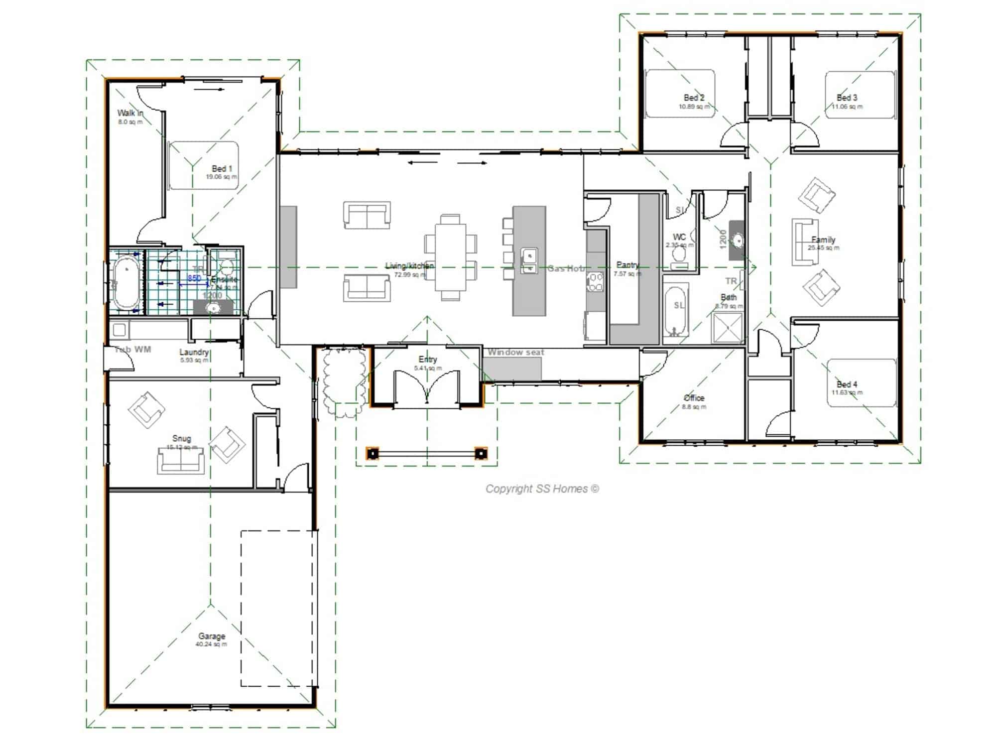
The Springfield Rd Home is a large-scale rural family home designed to accommodate modern living. At the same time, it retains a timeless rural aesthetic. At 295m², the home provides generous space, thoughtful zoning, and flexibility for families. This makes it ideal for those who value both connection and privacy.
The layout includes five bedrooms and two bathrooms. It is supported by three distinct living areas that allow the home to adapt to different activities and stages of family life. These multiple living zones provide space for entertaining, quiet retreat, and everyday family use. Thus, there is no compromise.
Externally, bevel back weatherboard cladding gives the home a classic rural appearance while complementing the surrounding landscape. This material choice adds texture and depth. It ensures the home sits naturally within its rural setting while remaining contemporary in form and performance.
Designed and built by SS Homes Hawke’s Bay, the Springfield Rd Home reflects a strong focus on usability, durability, and long-term comfort. The home has been carefully planned to suit its rural site. Orientation and layout support natural light, outlooks, and ease of living.
Explore the home in our Gallery
Living here is about embracing the region’s beauty. For more about the lifestyle at springfield-rd, discover what makes Hawke’s Bay so special at Hawkes Bay Tourism



