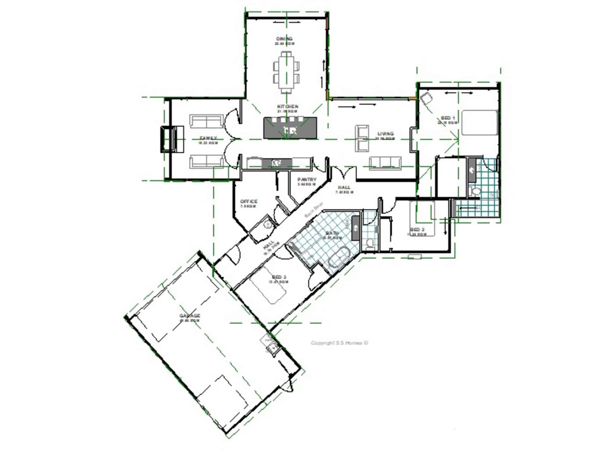
The Mangatahi Rd Home is a 265m² rural residence designed to deliver space, comfort, and functionality. This home features three bedrooms and two bathrooms. In addition, there are two generous living areas enhanced by scissor truss ceilings that create added height and openness. Triple car garaging provides ample space for vehicles, storage, and rural lifestyle needs. Designed and built by SS Homes Hawke’s Bay, this home is well suited to a rural setting. This is a place where practicality and architectural presence are equally important.
View the completed home in our Gallery.
Living here is about more than just design — it’s about embracing the region’s beauty. Discover what makes Hawke’s Bay so special at Hawkes Bay Tourism


